白浜町
白浜町の概要


白浜町は関西を代表するリゾート地です。ハワイのワイキキビーチと姉妹提携した白砂のビーチ「白良浜」や日本三古湯の一つである白浜温泉があり、日本のワーケーション発祥の地でもあります。
町内には南紀白浜空港があり、羽田空港と約1時間で往復できる(1日3往復)ため、首都圏本社との行き来も容易です。首都圏本社のIT企業のサテライトオフィスもたくさんあり、企業間連携による新たな発想・事業も期待できます。



白浜町のオフィス
物件情報
Office Cloud 9
お問合せ
・和歌山県企業立地課
Tel:073-441-2748
Mail:e0622001@pref.wakayama.lg.jp
・白浜町総務課
Tel:0739-43-6598
Mail:somu@town.shirahama.lg.jp
・株式会社オリエンタルコンサルタンツ
南紀白浜ワーケーション担当
Tel:03-6311-8208
Mail:nanki-workation@oriconsul.com
Tel:073-441-2748
Mail:e0622001@pref.wakayama.lg.jp
・白浜町総務課
Tel:0739-43-6598
Mail:somu@town.shirahama.lg.jp
・株式会社オリエンタルコンサルタンツ
南紀白浜ワーケーション担当
Tel:03-6311-8208
Mail:nanki-workation@oriconsul.com



本施設は木造建築物で、Nearly ZEBの認証も取得している環境にやさしい施設です。 自然豊かな白浜で、新たな働き方を実践しませんか?
| 施設管理者 | 株式会社オリエンタルコンサルタンツ・株式会社淺川組 | ||||||||||||||||||||||||
|---|---|---|---|---|---|---|---|---|---|---|---|---|---|---|---|---|---|---|---|---|---|---|---|---|---|
| ホームページURL | Office Cloud 9専用サイト | ||||||||||||||||||||||||
| 所在地 | 和歌山県西牟婁郡白浜町才野1622-1086 | ||||||||||||||||||||||||
| 構造・規模 | 木造・地上1階建 | ||||||||||||||||||||||||
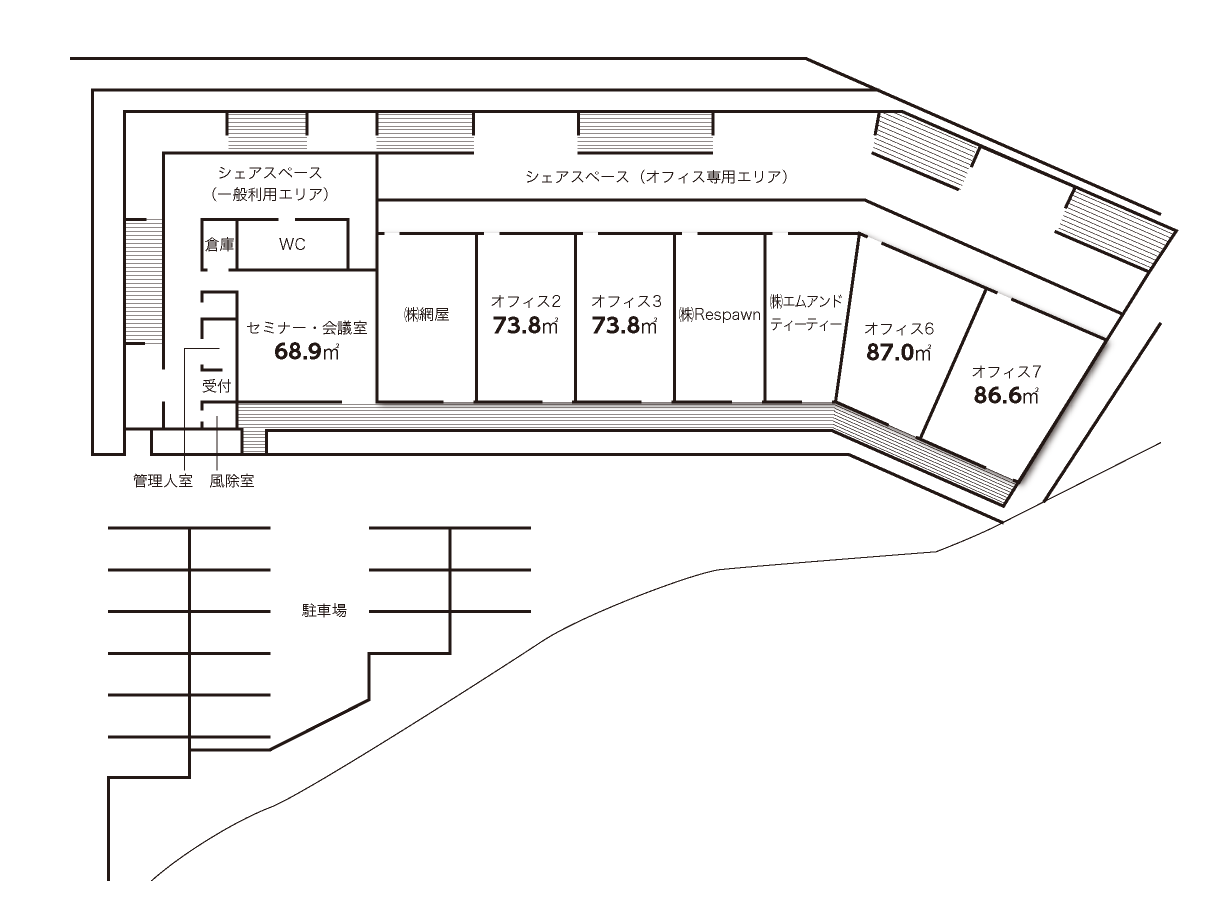
| 総面積 | 延床面積:999.9㎡(オフィス 7室) | ||||||||||||||||||||||||
| 付帯設備 | オフィス入居者専用シェアスペース、 コワーキングスペース(個室6ブース)、 会議室 1室 | ||||||||||||||||||||||||
| 竣工 | 2022年10月 | ||||||||||||||||||||||||
| オフィス面積・賃料(税抜き) |
※2025年10月時点の情報であり、予告なく変更となる場合があります。 |
||||||||||||||||||||||||
| 備考 | ・別途、共益費80,000円及びその他の費用(光熱費)必要
・通信:光ケーブル、MDFまで引込 ・セキュリティ:24時間利用可能・機械警備 ・空調:個別空調 ・駐車場:3台まで無料(4台目より5,000円/月・台) |
物件情報
ANCHOR
お問合せ
・和歌山県企業立地課
Tel:073-441-2748
Mail:e0622001@pref.wakayama.lg.jp
・白浜町総務課
Tel:0739-43-6598
Mail:somu@town.shirahama.lg.jp
・オーエス株式会社 エリアマネジメント・ソリューション部
Tel:06-6361-3562
Mail:anchor@osgroup.jp
Tel:073-441-2748
Mail:e0622001@pref.wakayama.lg.jp
・白浜町総務課
Tel:0739-43-6598
Mail:somu@town.shirahama.lg.jp
・オーエス株式会社 エリアマネジメント・ソリューション部
Tel:06-6361-3562
Mail:anchor@osgroup.jp



| 施設管理者 | オーエス株式会社(本社:大阪市北区) | ||||||||||||||||||||||||
|---|---|---|---|---|---|---|---|---|---|---|---|---|---|---|---|---|---|---|---|---|---|---|---|---|---|
| ホームページURL | ANCHOR専用サイト | ||||||||||||||||||||||||
| 所在地 | 和歌山県西牟婁郡白浜町1313 | ||||||||||||||||||||||||
| 構造・規模 | 鉄筋コンクリート造、地上3階建(遊休施設をリノベーション) | ||||||||||||||||||||||||
| 総面積 | 延床面積:985.85㎡(オフィス7室:計465.89㎡) | ||||||||||||||||||||||||
| 付帯設備 | コワーキングスペース1室、会議室1室、多目的ルーム(シアター設備付)、屋上テラス、共用ガーデン | ||||||||||||||||||||||||
| 竣工 | 2020年11月 | ||||||||||||||||||||||||
| オフィス面積・賃料 |
※2025年10月時点の情報であり、予告なく変更となる場合があります。 |
||||||||||||||||||||||||
| 備考 | 【ワーケーションルーム】
面積:70.68㎡ 利用料金:1日30,000円、1週間100,000円、1ヶ月400,000円 |
物件情報
白浜町ITビジネスオフィス
【現在満室】
【現在満室】
お問合せ
・和歌山県企業立地課
Tel:073-441-2748
Mail:e0622001@pref.wakayama.lg.jp
・白浜町総務課
Tel:0739-43-6598
Mail:somu@town.shirahama.lg.jp
Tel:073-441-2748
Mail:e0622001@pref.wakayama.lg.jp
・白浜町総務課
Tel:0739-43-6598
Mail:somu@town.shirahama.lg.jp



| 施設管理者 | 白浜町 | ||||||||||||||||||
|---|---|---|---|---|---|---|---|---|---|---|---|---|---|---|---|---|---|---|---|
| 所在地 | 和歌山県西牟婁郡白浜町2998-119 | ||||||||||||||||||
| 構造・規模 | 鉄筋コンクリート造、地上2階建(遊休施設をリノベーション) | ||||||||||||||||||
| 総面積 | 延床面積:838㎡(オフィス5室:計610.32㎡) | ||||||||||||||||||
| 付帯設備 | なし | ||||||||||||||||||
| 竣工 | 2004年1月 | ||||||||||||||||||
| オフィス面積・賃料 |
|
||||||||||||||||||
| 備考 | ・電気、電話、インターネット、ゴミ回収は個別にご契約が必要です。
・共益費(共有部の電気、ガス、水道など)及び敷金礼金は不要です。 ・各オフィス空調完備、駐車場は5台まで無料です。 |
物件情報
白浜町第2ITビジネスオフィス
【現在満室】
【現在満室】
お問合せ
・和歌山県企業立地課
Tel:073-441-2748
Mail:e0622001@pref.wakayama.lg.jp
・白浜町総務課
Tel:0739-43-6598
Mail:somu@town.shirahama.lg.jp
Tel:073-441-2748
Mail:e0622001@pref.wakayama.lg.jp
・白浜町総務課
Tel:0739-43-6598
Mail:somu@town.shirahama.lg.jp



| 施設管理者 | 白浜町 | |||||||||||||||
|---|---|---|---|---|---|---|---|---|---|---|---|---|---|---|---|---|
| 所在地 | 和歌山県西牟婁郡白浜町2054-1 | |||||||||||||||
| 構造・規模 | 鉄骨造、地上2階建 | |||||||||||||||
| 総面積 | 延床面積:751.99㎡(オフィス4室:計280.00㎡) | |||||||||||||||
| 付帯設備 | なし | |||||||||||||||
| 竣工 | 2018年6月 | |||||||||||||||
| オフィス面積・賃料 |
|
|||||||||||||||
| 備考 | ・電話、インターネットは個別にご契約が必要です。
・賃料とは別に使用料に応じた電気料とゴミ処理手数料が必要です。 ・共益費(共有部の電気、ガス、水道など)及び敷金礼金は不要です。 ・各オフィス空調完備、駐車場は無料です。 |